活動隔斷的基本構造
01.百變的“活動隔斷”體系

我們通常接觸到的活動隔斷包括旋轉隔斷,軌道隔斷,折疊隔斷或者屏風等等,而這些隔斷和我們通常在裝飾施工中做的通過鋼結構件焊接的固定隔斷不同,移動隔斷很重要的是它的五金構件。
作為設計師,我們的工作中經常需要和各種廠家打交道,也需要為客戶推薦產品,搭配產品。
而在這其中,五金系統又是獨立于家具等很重要的體系,設計師通過了解五金的用途和配置,將對精細化定制設計有更好的把控能力。
02.如何簡單理解折疊、導軌、旋轉隔斷的構造?
經常會有門類廠家針對客戶和設計師群體做產品的博覽會,通常會有精致的結構件模型講解,看大這樣復雜的構造我的心理是很恐怖的,不得不說構造太復雜了。

其實,面對這樣復雜的構造,我們只需要稍稍簡化就可以很方便的理解,如下圖所示:

△構造示意圖
03.隔斷旋轉的終極秘密——天地軸
旋轉門和旋轉隔斷的是通過地彈簧和天地軸來實現旋轉的,我們先來簡要的看看它們的通用構造做法:

△地彈簧安裝示意圖
天軸是在上部連接門框和門扇的配件,由一個固定在門扇上的可以用螺栓調節的插銷式的軸和一個固定在門扇的軸套組成。
天軸地軸可以適用于幾乎所有木制、鋼制、鋁合金門和使用玻璃門夾的無邊框玻璃門。

從軸心位置的不同,天地軸又分為偏心軸和正(中)心軸,偏心軸常用于室內裝飾門或者裝飾隔斷,正心軸則常用于一些固定家具,固定旋轉屏風等等。

△偏心轉軸隔斷

△中心轉軸隔斷
圖紙表達:

△旋轉門立面圖

△旋轉門平面圖
04.能移動還能“藏”的隔斷怎么實現?


△單雙片活動隔斷示意圖
這種在宴會廳中經常看到的高隔斷可以實現移動和藏的功能原因主要是來自它頂部的導軌和靈活的組合形式,其基本的導軌構造如圖下所示:

△導軌構造
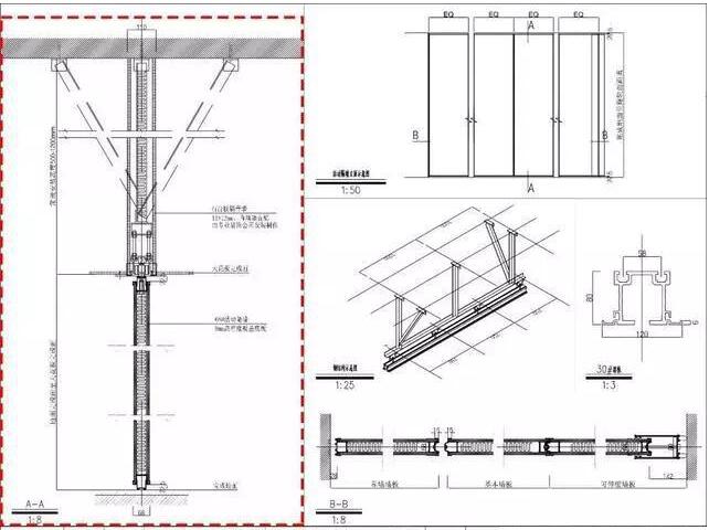
1) 活動隔斷(導軌型)圖紙表達:


△廠家專業圖紙
施工現場:


△現場吊裝
2) 折疊隔斷:

當我們學會了前面的兩種隔斷的五金構造,再看到折疊門是不是有似曾相識的感覺?
我們看了旋轉門所用到的天地軸,活動隔斷用到的滑軌和滾輪,那么如果將這兩種五金構造加上門扇合頁組合在一起會是什么效果呢?
沒錯,就是下面我們看的折疊門的基本構造:

折疊門五金
△折疊玻璃門構造
折疊門案例圖紙表達:
△廠家專業圖紙
上一篇:活動隔斷墻的布局設計

